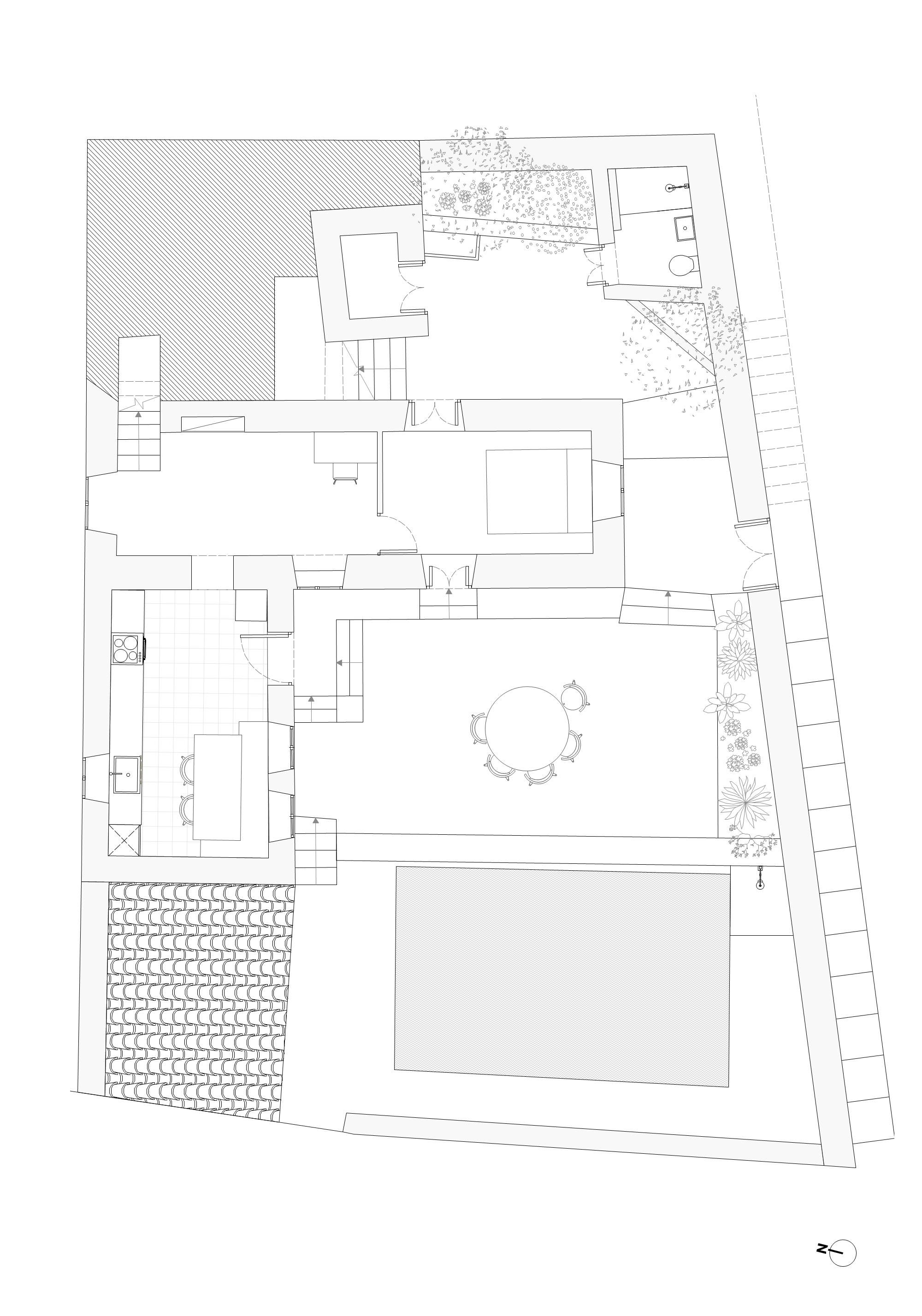
N & V House



Type: House Restoration & Renovation
Year: 2022-2023

Stages Involved: Design Package, Planning Application, Construction Supervision

Status: Complete

Client: Private

Photographs: Vasso Paraschi


The house is located in the area of Kala Pigadia, Hydra. 










© aTs architects 2024